
平板闸阀适用于天然气,石油,化工,环保,城市管道,燃气管线等输送管线,放空系统和汽储存装置上,平板闸阀用作启闭设备。Z43型带导流孔单闸板式平板闸阀适用于天然气开采和净化的长输管线。
平板闸阀的特点:
1.平板闸阀阀座的密封结构应为弹性有预紧力,上、下游密封座同时密封的结构。阀座与密封物间始终为面对面密封。
2.平板闸阀阀座有自清洗功能,并且在阀门开启或关闭过程中不受气流的直接冲刷。阀座应由有润滑、不磨损材料制成。
3.阀门执行机构的故障不会影响到阀门的其它部分,维修和更换工作能够在不拆下阀门的情况下进行。
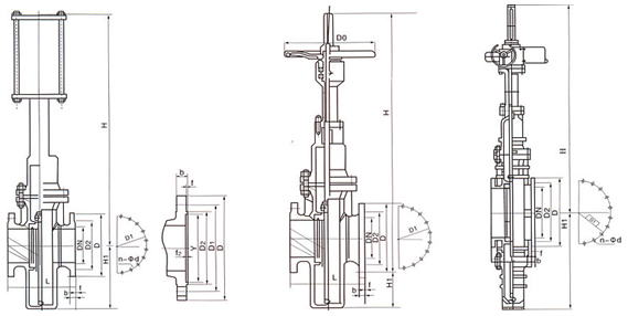
(1) 轭架套管 – 铝青铜轭架套管配置针形止推轴承,最大程度减少操作扭矩。
(2) 阀杆 – 螺纹长度直到托架;销钉和点焊;具有稳定性。
(3) 压力密封 – 结构简单,配置分段扣环和镀银低碳钢垫圈,有助于拆卸和实现最好的阀帽密封。
(4) 阀座环 – 焊接阀座环垂直于流动通道,易于维护。
(5) 执行机构 – 这些阀门可以配置电动、液动或气动执行机构。DN300以下配置标准手动手轮,DN350以上配置斜齿轮操作机构。
(6) 轭架 – 完全装配式轭架通过抗震测试,易于维护和安装执行机构。
(7) 压盖 – 两件式,自调节压盖,避免被弹出。
(8) 整体后座 – 硬面,使用寿命最长。
(9) 阀瓣 – 弹簧负载阀瓣能够自行调节,减少执行机构的扭矩需求。
(10) 整体止动 – 整体铸造托架止动装置,定位组装的托架阀瓣,使得阀座更加稳定可靠。
| 设计规范 | 结构长度 | 连接法兰 | 试验与检验 | 压力-温度 | 产品标识 |
| JB/T5298 | JB/T5298 | JB/79 | JB/T5298 | GB9131 | GB/T12220 |
| API6D | API6D | ANSI6.5 | API6D | ANSI B16.34 | MSS SP-25 |
| 设计等级 | 常温下试验压力(MPa) | 适用温度℃ | 适用介质 | |||||||
| 壳体 | 左密封 | 左密封 | 低压密封 | “G”型 | “D”型 | 普通型 | “抗硫”型 | “基本”型 | ||
| 公称压力PN(MPa) | 1.6 | 2.4 | 1.76 | 1.76 | 0.6 | -29~50 | -45~21 | -2~121 | H2S和CO2总含量大于500mg/m2的介质 | 石油天然气、水等 |
| 2.5 | 3.75 | 2.75 | 2.75 | 0.6 | ||||||
| 4.0 | 6.0 | 4.4 | 4.4 | 0.6 | ||||||
| 6.4 | 9.6 | 7.04 | 7.04 | 0.6 | ||||||
| 磅级Lb | 150 | 3.0 | 2.2 | 2.2 | 0.6 | |||||
| 300 | 7.7 | 5.6 | 5.6 | 0.6 | ||||||
| 阀门/阀盖 | WCB | WC6 | A352-LCB | A351-CF8M |
| 闸板 | 2Cr13+ENP | 20CrMoV+STL | ANSO410+ENP | ANSI316+ENP |
| 阀杆 | 2Cr13 | 2Cr13 | A182-A6a | A182-A316S |
| 阀座 | 25+PTFE | 20CrMoV+STL | A105+PTFE | A182-F316+PTFE |
| 填料 | NBR/FPM | 柔性石墨/Flexible Graphite | 聚四氟乙烯/PTFE+FPM | |
| 垫片 | - | |||
| 螺栓 | 35 | 35CrMo | A193-B7M | A193-B8 |
| 适用介质 | 水、油口、蒸汽 | 蒸汽、油品 | 丙烷、乙烯 | 硝酸类 |
| 1.6MPa | DN | L | D | D1 | D2 | Do | f | b | H | H1 | n-Φd |
|
凸面法法 RF (K)Z43WF6C (K)Z543WF6C (K)Z643WF6C (K)Z943WF6C |
50 | 178 | 160 | 125 | 100 | 250 | 3 | 16 | 584 | 80 | 4-Φ18 |
| 65 | 190 | 180 | 145 | 120 | 250 | 3 | 18 | 634 | 95 | 4-Φ18 | |
| 80 | 203 | 195 | 160 | 135 | 250 | 3 | 20 | 688 | 100 | 8-Φ18 | |
| 100 | 229 | 215 | 181 | 155 | 300 | 3 | 20 | 863 | 114 | 8-Φ18 | |
| 125 | 254 | 245 | 210 | 185 | 350 | 3 | 22 | 940 | 132 | 8-Φ18 | |
| 150 | 267 | 280 | 240 | 210 | 350 | 3 | 24 | 1030 | 150 | 8-Φ23 | |
| 200 | 292 | 335 | 295 | 265 | 350 | 3 | 26 | 1277 | 168 | 12-Φ23 | |
| 250 | 330 | 405 | 355 | 320 | 400 | 3 | 30 | 1491 | 203 | 12-Φ25 | |
| 300 | 356 | 460 | 410 | 375 | 450 | 4 | 30 | 1701 | 237 | 12-Φ25 | |
| 350 | 381 | 520 | 470 | 435 | 500 | 4 | 34 | 1875 | 265 | 16-Φ30 | |
| 400 | 406 | 580 | 525 | 485 | 305 | 4 | 36 | 2180 | 300 | 16-Φ30 | |
| 450 | 432 | 640 | 585 | 545 | 305 | 4 | 40 | 2440 | 325 | 20-Φ34 | |
| 500 | 457 | 705 | 650 | 608 | 305 | 4 | 44 | 2860 | 360 | 20-Φ41 | |
| 600 | 508 | 840 | 770 | 718 | 305 | 5 | 48 | 3450 | 425 | 20-Φ41 | |
| 700 | 610 | 910 | 840 | 788 | 305 | 5 | 50 | 3960 | 460 | 24-Φ41 | |
| 800 | 660 | 1020 | 950 | 898 | 305 | 5 | 52 | 4550 | 512 | 24-Φ41 | |
| 900 | 711 | 1120 | 1050 | 998 | 250 | 5 | 54 | 5250 | 565 | 28-Φ48 | |
| 1000 | 811 | 1250 | 1170 | 1110 | 250 | 5 | 56 | 5870 | 630 | 28-Φ18 | |
| 2.5MPa | 50 | 178 | 160 | 125 | 100 | 250 | 3 | 20 | 584 | 80 | 4-Φ18 |
|
凸面法法 RF (K)Z43WF-25 (K)Z543WF-25 (K)Z643WF-25 (K)Z943WF-25 |
65 | 190 | 180 | 145 | 120 | 300 | 3 | 22 | 634 | 95 | 8-Φ18 |
| 80 | 203 | 195 | 160 | 135 | 350 | 3 | 22 | 388 | 100 | 8-Φ18 | |
| 100 | 229 | 230 | 190 | 160 | 350 | 3 | 24 | 863 | 114 | 8-Φ23 | |
| 125 | 254 | 270 | 220 | 188, | 350 | 3 |
28 |
940 | 132 | 8-Φ25 | |
| 150 | 267 | 300 | 250 | 218 | 400 | 3 | 30 | 1030 | 150 | 8-Φ25 | |
| 200 | 292 | 360 | 310 | 278 | 450 | 3 | 34 | 1277 | 168 | 12-Φ25 | |
| 250 | 330 | 425 | 370 | 332 | 500 | 3 | 36 | 1491 | 203 | 12-Φ30 | |
| 300 | 356 | 485 | 430 | 390 | 305 | 4 | 40 | 1701 | 237 | 16-Φ30 | |
| 350 | 381 | 550 | 490 | 448 | 305 | 4 | 44 | 1875 | 265 | 16-Φ34 | |
| 400 | 406 | 610 | 550 | 505 | 305 | 4 | 48 | 2180 | 300 | 16-Φ34 | |
| 450 | 432 | 660 | 600 | 555 | 305 | 4 | 50 | 2440 | 325 | 20-Φ34 | |
| 500 | 457 | 730 | 660 | 610 | 305 | 4 | 52 | 2860 | 360 | 20-Φ41 | |
| 600 | 508 | 840 | 770 | 718 | 305 | 5 | 56 | 3450 | 425 | 20-Φ41 | |
| 700 | 610 | 955 | 875 | 815 | 305 | 5 | 60 | 3960 | 460 | 24-Φ48 | |
| 800 | 660 | 1070 | 990 | 930 | 305 | 5 | 64 | 4550 | 512 | 24-Φ48 | |
| 900 | 711 | 1180 | 1090 | 1025 | - | 5 | 66 | 5250 | 595 | 28-Φ54 | |
| 1000 | 811 | 1305 | 1210 | 1140 | - | 5 | 68 | 5870 | 660 | 28-Φ48 |
| 4.0MPa | DN | L | D | D1 | D2 | Y | Do | f | f2 | b | H | H1 | n-Φd |
|
凹凸法法 MFM (K)Z43WF-40 (K)Z543WF-40 (K)Z643WF-40 (K)Z943WF-40 |
50 | 250 | 160 | 125 | 100 | 88 | 250 | 3 | 4 | 20 | 584 | 80 | 4-Φ18 |
| 65 | 280 | 180 | 145 | 120 | 110 | 250 | 3 | 4 | 22 | 634 | 95 | 8-Φ18 | |
| 80 | 310 | 195 | 160 | 135 | 121 | 250 | 3 | 4 | 22 | 679 | 102 | 8-Φ18 | |
| 100 | 350 | 230 | 190 | 160 | 150 | 300 | 3 | 4.5 | 24 | 863 | 115 | 8-Φ23 | |
| 125 | 400 | 270 | 220 | 188 | 176 | 350 | 3 | 4.5 | 28 | 940 | 133 | 8-Φ25 | |
| 150 | 450 | 300 | 250 | 218 | 204 | 350 | 3 | 4.5 | 30 | 1040 | 152 | 8-Φ25 | |
| 200 | 550 | 375 | 320 | 282 | 260 | 350 | 3 | 4.5 | 38 | 1282 | 188 | 12-Φ30 | |
| 250 | 650 | 445 | 385 | 345 | 313 | 400 | 3 | 4.5 | 42 | 1495 | 223 | 12-Φ34 | |
| 300 | 750 | 415 | 450 | 408 | 364 | 450 | 4 | 4.5 | 46 | 1701 | 250 | 16-Φ34 | |
| 350 | 850 | 470 | 510 | 465 | 422 | 500 | 4 | 5 | 52 | 1880 | 280 | 16-Φ34 | |
| 400 | 950 | 655 | 585 | 535 | 474 | 305 | 4 | 5 | 58 | 2200 | 310 | 20-Φ41 | |
| 450 | 1050 | 680 | 610 | 560 | 524 | 305 | 4 | 5 | 60 | 2480 | 335 | 20-Φ41 | |
| 500 | 1150 | 755 | 670 | 612 | 576 | 305 | 4 | 5 | 62 | 2890 | 380 | 20-Φ48 | |
| 600 | 1350 | 890 | 795 | 730 | 678 | 305 | 5 | 6 | 62 | 2480 | 450 | 20-Φ54 | |
| 700 | 1450 <, /TD> | 995 | 900 | 835 | 768 | 305 | 5 | 6 | 68 | 3985 | 500 | 24-Φ54 | |
| 800 | 1650 | 1135 | 1030 | 960 | 876 | 305 | 5 | 6 | 76 | 4750 | 570 | 24-Φ58 | |
| 6.4MPa | 50 | 250 | 175 | 135 | 105 | 88 | 250 | 3 | 4 | 26 | 584 | 90 | 4-Φ23 |
|
凹凸法法 MFM (K)Z43WF-64 (K)Z543WF-64 (K)Z643WF-64 (K)Z943WF-64 |
65 | 280 | 200 | 160 | 130 | 110 | 250 | 3 | 4 | 28 | 634 | 105 | 8-Φ23 |
| 80 | 310 | 210 | 170 | 140 | 121 | 250 | 3 | 4 | 30 | 679 | 110 | 8-Φ23 | |
| 100 | 350 | 250 | 200 | 168 | 150 | 300 | 3 | 4.5 | 32 | 763 | 130 | 8-Φ25 | |
| 125 | 400 | 295 | 202 | 176 | 350 | 3 | 4.5 | 36 | 970 | 150 | 8-Φ30 | - | |
| 150 | 450 | 340 | 280 | 240 | 204 | 350 | 3 | 4.5 | 38 | 1038 | 175 | 8-Φ34 | |
| 200 | 500 | 405 | 345 | 300 | 260 | 350 | 3 | 4.5 | 44 | 1282 | 210 | 12-Φ34 | |
| 250 | 650 | 470 | 400 | 352 | 313 | 400 | 3 | 4.5 | 48 | 1495 | 240 | 12-Φ41 | |
| 300 | 750 | 530 | 460 | 412 | 364 | 450 | 4 | 4.5 | 54 | 1965 | 270 | 16-Φ41 | |
| 350 | 850 | 595 | 525 | 475 | 422 | 500 | 4 | 5 | 60 | 2185 | 300 | 16-Φ41 | |
| 400 | 950 | 670 | 585 | 525 | 474 | 305 | 4 | 5 | 66 | 2573 | 335 | 16-Φ48 | |
| 450 | 1050 | 715 | 630 | 570 | 524 | 305 | 4 | 5 | 68 | 2800 | 360 | 20-Φ48 | |
| 500 | 1150 | 800 | 705 | 640 | 576 | 305 | 4 | 5 | 70 | 3280 | 405 | 20-Φ54 | |
| 600 | 1350 | 930 | 820 | 750 | 678 | 305 | 5 | 6 | 76 | 380 | 470 | 20-Φ58 | |
| 10.0MPa | 50 | 250 | 195 | 145 | 112 | 88 | 250 | 3 | 4 | 28 | 590 | 100 | 4-Φ25 |
|
凹凸法法 MFM (K)Z43WF00 (K)Z543WF00 (K)Z643WF00 (K)Z943WF00 |
65 | 280 | 220 | 170 | 138 | 110 | 250 | 3 | 4 | 32 | 640 | 115 | 8-Φ25 |
| 80 | 310 | 230 | 180 | 148 | 121 | 250 | 3 | 4 | 34 | 680 | 120 | 8-Φ25 | |
| 100 | 350 | 265 | 210 | 172 | 150 | 300 | 3 | 4.5 | 38 | 870 | 135 | 8-Φ30 | |
| 125 | 400 | 310 | 250 | 210 | 176 | 350 | 3 | 4.5 | 42 | 980 | 155 | 8-Φ34 | |
| 150 | 450 | 350 | 290 | 250 | 204 | 350 | 3 | 4.5 | 46 | 1100 | 180 | 12-Φ34 | |
| 200 | 550 | 430 | 360 | 312 | 260 | 350 | 3 | 4.5 | 454 | 1315 | 220 | 12-Φ41 | |
| 250 | 650 | 500 | 430 | 382 | 313 | 400 | 3 | 4.5 | 60 | 1605 | 255 | 12-Φ41 | |
| 300 | 75 | 585 | 500 | 442 | 364 | 450 | 4 | 4.5 | 70 | 1925 | 295 | 16-Φ48 | |
| 350 | 850 | 665 | 560 | 408 | 422 | 500 | 4 | 5 | 76 | 2280 | 335 | 16-Φ54 | |
| 400 | 950 | 715 | 620 | 558 | 474 | 305 | 4 | 5 | 80 | 2580 | 360 | 16-Φ54 |
