
用途及使用范围
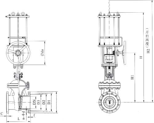
Z6S41系列气动带手动楔式闸阀是具有气动执行机构(双层气缸,并带有缓冲机构)和手动及其保护机构(手动和可自锁的气动-手动转换装置)的低支架明杆闸阀。该阀由于采用双层气缸结构,其与单气缸式气动闸阀相比,提升力增大了一倍。这就从根本上解决了单气缸气动闸阀的某些阀体内楔死而打不开的弊病。而且,由于该阀具备缓冲机构,能有效地减速轻了关闭阀门时,由于活塞下行冲击而造成的阀板车密封面和阀体密封面的磨损,同时,也能避免闸板卡死的现象。
为了配合用户实现操作自动化,本公司除供应本系列产品之外,还可单独提供包括支架在内的气缸体,帮助用户对已有的种类繁多的手动闸阀进行改造,将双缸气动执行机构部分安装在手动闸阀的阀体大盖上,即可构成双缸式气动-手动两用闸阀。
由于其技术先进,性能可靠,操作切换和维修方便,已被石油、化工、冶金、电力、海运等部门作为输送气体、液体介质的管道开闭装置而广泛使用。
公称压力:1.6,2.5.4.0.6.4MPa
使用温度:-29~425℃(碳钢)-40~+550℃(不锈钢)
公称通径:DN50~800mm
阀体材质:304.306.316L.WCB.HT200
连接法兰:JB/T79.GB913.HG20592
适用介质:空气、水、蒸汽、油及硝酸、醋酸等腐蚀性流体
作用方式:切断型,调节型,手动控制
电源电压:220VAC、24VAC
输入信号:4~20mA/1~5VDC
0~20mA/0~10VDC
|
型号
|
Z6S41H-25
|
Z6S41H6
|
Z6S41T0
|
|
公称通径DN(mm)
|
50~600
|
40~400
|
40~400
|
|
适用介质
|
水、蒸气
、油品 |
水、蒸气
|
水、蒸气
|
|
最高介质温度(℃)
|
425
|
425
|
200
|
|
气缸工作压力(表)MPa
|
0.4~0.6
|
||
1、阀体性能
|
型号
|
公称压力PN(MPa)
|
阀体试验压力
PN(MPa) |
工作温度(℃)
|
||||||||
|
120
|
200
|
225
|
250
|
300
|
350
|
400
|
425
|
||||
|
强度试验
|
密封试验
|
工作压力P(MPa)
|
|||||||||
|
Z6S41T0
|
1.6
|
2.4
|
1.6
|
-
|
1.6
|
-
|
1.5
|
1.3
|
1.2
|
1.0
|
0.9
|
|
Z6S41H-25
|
2.5
|
3.8
|
2.5
|
-
|
2.5
|
-
|
2.3
|
2.0
|
1.8
|
1.6
|
1.4
|
|
Z6S41H-40
|
4.0
|
6.0
|
4.0
|
-
|
4.0
|
-
|
3.6
|
3.2
|
2.8
|
2.6
|
2.2
|
|
Z6S41H-64
|
6.4
|
9.6
|
6.4
|
-
|
6.4
|
-
|
5.7
|
5.2
|
4.6
|
3.8
|
3.6
|
2、气缸性能
|
型号
|
公称压力
PN(MPa) |
气缸密封试验压力
PN(MPa) |
气缸工作压力
PN(MPa) |
|
Z6S41T0
Z6S41H-25 Z6S41H-40 Z6S41H-64 |
0.6
|
0.6
|
0.4~0.6
|
3、耗气量
[净化压缩空气压力:0.4MPa(表)] 闸阀的气缸单程耗气量(以压缩空气体积计算)
|
气缸直径D(mm)
|
50
|
80
|
100
|
150
|
200
|
250
|
300
|
350
|
400
|
|
耗气量(m)
|
0.0023
|
0.0029
|
0.0033
|
0.0084
|
0.0169
|
0.0198
|
0.0320
|
0.0636
|
0.0707
|
|
阀体、阀盖、阀板
|
铸钢
|
|
阀体及闸板的密封面
|
合金钢
|
|
阀杆
|
不锈钢
|
|
双头螺栓
|
35号钢
|
|
气缸
|
20号无缝钢管
|
|
活塞
|
铸铝合金
|
|
手动螺母
|
青铜
|
|
密封圈
|
石棉橡胶板
缠绕式金属石墨垫片 |
|
活塞环及轴环
|
耐油橡胶○型圈
|
|
填料函
|
石墨石棉绳
|
|
DN
|
D
|
D1
|
D2
|
b
|
f
|
L
|
H
|
Ds
|
D0
|
Z-d
|
气源接头
|
重量Kg
|
|
50
|
160
|
125
|
100
|
16
|
3
|
250
|
865
|
160
|
250
|
48
|
M12×1.25
|
42
|
|
80
|
195
|
160
|
135
|
20
|
3
|
280
|
1100
|
160
|
300
|
88
|
54
|
|
|
100
|
215
|
180
|
155
|
20
|
3
|
300
|
1200
|
160
|
350
|
88
|
100
|
|
|
150
|
280
|
240
|
210
|
24
|
3
|
350
|
1380
|
219
|
400
|
8-23
|
135
|
|
|
200
|
335
|
295
|
265
|
26
|
3
|
400
|
1580
|
273
|
400
|
12-23
|
270
|
|
|
250
|
405
|
355
|
320
|
30
|
3
|
450
|
1710
|
273
|
400
|
12-25
|
M20×1.5
|
350
|
|
300
|
460
|
410
|
375
|
30
|
4
|
500
|
1880
|
325
|
500
|
12-25
|
480
|
|
|
350
|
520
|
470
|
435
|
34
|
4
|
550
|
2180
|
426
|
500
|
16-25
|
570
|
|
|
400
|
580
|
525
|
485
|
36
|
4
|
600
|
2325
|
459
|
550
|
16-30
|
900
|
|
|
450
|
640
|
585
|
545
|
40
|
4
|
650
|
2570
|
500
|
550
|
20-30
|
1560
|
|
|
500
|
705
|
650
|
608
|
44
|
4
|
700
|
2800
|
600
|
600
|
20-34
|
M24×1.5
|
1820
|
|
600
|
840
|
770
|
718
|
48
|
5
|
800
|
3010
|
600
|
600
|
20-41
|
M27×1.5
|
2850
|
|
DN
|
D
|
D1
|
D2
|
b
|
f
|
L
|
H
|
Ds
|
D0
|
Z-d
|
气源接头
|
重量Kg
|
|
50
|
160
|
125
|
100
|
20
|
3
|
250
|
865
|
160
|
250
|
48
|
M12×1.25
|
42
|
|
80
|
195
|
160
|
135
|
22
|
3
|
280
|
1100
|
160
|
300
|
88
|
54
|
|
|
100
|
230
|
190
|
160
|
24
|
3
|
300
|
1200
|
160
|
350
|
8-23
|
105
|
|
|
150
|
300
|
250
|
218
|
30
|
3
|
350
|
1380
|
219
|
400
|
8-25
|
190
|
|
|
200
|
360
|
310
|
278
|
34
|
3
|
400
|
1580
|
273
|
400
|
12-25
|
280
|
|
|
250
|
425
|
370
|
332
|
36
|
3
|
450
|
1710
|
273
|
400
|
12-30
|
M20×1.5
|
405
|
|
300
|
485
|
430
|
390
|
40
|
4
|
500
|
1880
|
325
|
500
|
16-30
|
535
|
|
|
350
|
550
|
490
|
448
|
44
|
4
|
550
|
2180
|
426
|
500
|
16-34
|
720
|
|
|
400
|
610
|
550
|
405
|
48
|
4
|
600
|
2325
|
459
|
550
|
16-34
|
1200
|
|
|
450
|
660
|
600
|
555
|
50
|
4
|
650
|
2570
|
500
|
550
|
20-34
|
1910
|
|
|
500
|
730
|
660
|
610
|
52
|
4
|
700
|
2800
|
650
|
600
|
20-41
|
M24×1.5
|
2250
|
|
600
|
840
|
770
|
718
|
56
|
5
|
800
|
3010
|
730
|
600
|
20-41
|
M27×1.5
|
3100
|
|
DN
|
D
|
D1
|
D2
|
b
|
f
|
L
|
H
|
Ds
|
D0
|
Z-d
|
气源接头
|
重量Kg
|
|
50
|
160
|
125
|
100
|
20
|
3
|
250
|
890
|
160
|
300
|
48
|
M12×1.25
|
62
|
|
80
|
195
|
160
|
135
|
22
|
3
|
310
|
1150
|
219
|
350
|
88
|
130
|
|
|
100
|
230
|
190
|
160
|
24
|
3
|
350
|
1300
|
273
|
400
|
8-23
|
155
|
|
|
150
|
300
|
250
|
218
|
30
|
3
|
450
|
1450
|
273
|
400
|
8-25
|
240
|
|
|
200
|
375
|
320
|
282
|
38
|
3
|
550
|
1660
|
325
|
500
|
12-30
|
M20×1.5
|
280
|
|
250
|
445
|
385
|
345
|
42
|
3
|
650
|
1860
|
325
|
500
|
12-34
|
305
|
|
|
300
|
510
|
450
|
408
|
46
|
4
|
750
|
2010
|
426
|
500
|
16-34
|
580
|
|
|
350
|
570
|
510
|
465
|
52
|
4
|
850
|
2350
|
459
|
550
|
16-34
|
770
|
|
|
400
|
655
|
585
|
535
|
58
|
4
|
950
|
2530
|
600
|
550
|
16-41
|
1260
|
|
|
450
|
680
|
610
|
560
|
60
|
4
|
1050
|
2780
|
650
|
600
|
20-41
|
M24×1.5
|
1680
|
|
500
|
755
|
670
|
612
|
62
|
4
|
1150
|
3100
|
730
|
600
|
20-48
|
M27×1.5
|
2150
|
|
DN
|
D
|
D1
|
D2
|
b
|
f
|
L
|
H
|
Ds
|
D0
|
Z-d
|
气源接头
|
重量Kg
|
|
50
|
175
|
135
|
105
|
26
|
3
|
250
|
865
|
160
|
250
|
4-23
|
M12×1.25
|
85
|
|
80
|
210
|
170
|
140
|
30
|
3
|
310
|
1170
|
300
|
300
|
8-23
|
125
|
|
|
100
|
250
|
200
|
168
|
32
|
3
|
350
|
1280
|
350
|
350
|
8-25
|
178
|
|
|
150
|
340
|
280
|
240
|
38
|
3
|
450
|
1470
|
400
|
400
|
8-34
|
305
|
|
|
200
|
405
|
345
|
300
|
44
|
3
|
550
|
1650
|
400
|
400
|
12-34
|
M20×1.5
|
410
|
|
250
|
470
|
400
|
350
|
48
|
3
|
650
|
1810
|
400
|
400
|
12-41
|
690
|
|
|
300
|
530
|
460
|
412
|
54
|
4
|
750
|
1960
|
500
|
500
|
16-41
|
770
|
|
|
350
|
595
|
525
|
475
|
60
|
4
|
850
|
2240
|
500
|
500
|
16-41
|
980
|
|
|
400
|
670
|
585
|
525
|
66
|
4
|
930
|
2450
|
550
|
550
|
16-48
|
M24×1.5
|
1970
|
