
用途及特点
内螺纹连接球阀及对焊连接球阀分为整体式、两段式及三段式。阀体铸造采用台湾引进的先进工艺,结构合理、造型美观。阀座采用弹性密封结构,密封可靠,启闭轻松。阀杆采用有倒密封的下装式结构,阀腔异常升压时,阀杆不会被冲击。可设置90°开关定位机构,根据需要加锁以防止误操作。内螺纹连接不堪阀及对焊连接球阀适用于PN1.0~4.0MPa,工作温度 -29~180℃(密封圈为增强聚四氟乙烯)或-29~300℃(密封圈为对位聚苯)的各种管路上,用于截断或接通管路中的介质,选用不同的材质,可分别适用于水、蒸汽、油品、硝酸、醋酸、氨盐水、中和水等多种介质。
|
公称通径DN(mm)
|
600
|
|||||
|
公称压力PN(MPa)
|
1.6
|
|||||
|
公称压力
PS(MPa) |
强度试验
|
2.4
|
||||
|
密封试验
|
1.8
|
|||||
|
材料\材料代号
|
C
|
P
|
R
|
|||
|
主 要 零 件 |
阀 体
|
WCB
|
CF8 304
|
CF8M 316
|
||
|
球 体
|
WCB
|
CF8 304
|
CF8M 316
|
|||
|
阀 杆
|
2Cr13
|
0Cr18Ni9Ti
|
0Cr17NiMo2
|
|||
|
密封圈
|
增强聚四氟乙烯 对位聚苯
|
|||||
|
填 料
|
聚四氟乙烯 柔性石墨
|
|||||
|
适 用
工 况 |
适用介质
|
水、蒸汽、油品
|
硝酸类
|
醋酸类
|
||
|
适用温度
|
-28℃ - 350℃
|
|||||
|
执行器
|
型 号
|
DA/SR系列、GTD/GTE系列、QGSY系列等
|
||||
|
气源压力
|
0.4-0.7MPa
|
|||||
|
执行标准
|
设计制造
|
结构长度
|
法兰尺寸
|
压力温度
|
试验检验
|
|
|
GB12237
|
GB12221
|
/
|
GB9131
|
GB13927
|
||
|
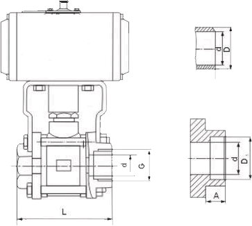
公称
通径 DN(mm) |
尺 寸(mm)
|
执 行 器 型 号
|
|||||||||
|
三段式
|
对焊式
|
承插爆式
|
|||||||||
|
G
|
L
|
d
|
L
|
d
|
D
|
L
|
d
|
D1
|
A
|
可选配DA/SR、QGSY、
SY-CH、GTD/GTE 系列执行器 (以上选配仅供参考具体选区用根据实际要求) |
|
|
6
|
1/4
|
65
|
11.6
|
65
|
11.6
|
18
|
65
|
11.6
|
14.1~14.3
|
9.5
|
|
|
10
|
3/8
|
65
|
12.7
|
65
|
12.7
|
18
|
65
|
12.7
|
17.55~17.8
|
9.5
|
|
|
15
|
1/2
|
67
|
15
|
67
|
15.8
|
24
|
67
|
15
|
21.7~21.95
|
9.5
|
|
|
20
|
3/4
|
82
|
20
|
82
|
20
|
28
|
82
|
20
|
27.05~27.3
|
11.1
|
|
|
25
|
1
|
91
|
25
|
91
|
25
|
34
|
91
|
25
|
33.8~34.05
|
12.7
|
|
|
32
|
11/4
|
108
|
32
|
108
|
32
|
41
|
108
|
32
|
42.55~42.8
|
14.3
|
|
|
40
|
11/2
|
129
|
38
|
129
|
38
|
49
|
129
|
38
|
48.65~48.9
|
15.89
|
|
|
50
|
2
|
148
|
50
|
148
|
50
|
62
|
148
|
50
|
61.1~61.35
|
17.4
|
|
|
65
|
2
|
186
|
64
|
193
|
64
|
78
|
.
|
.
|
.
|
.
|
|
|
80
|
3
|
206
|
78
|
222
|
78
|
94
|
.
|
.
|
.
|
.
|
|
|
100
|
4
|
240
|
98
|
273
|
98
|
124
|
.
|
.
|
.
|
||
